打动人心,视觉占比83%

2019 年 5 月 19 日 笔记侠

点击蓝字关注 回复“1”领取今日日签福利大礼包


内容来源:2019年5月4日,在上海交大海外教育学院主办的第二届中日专家研讨会上,日本著名空间大师大高启二进行了以“新零售门店与VMD五感营销”为主题的精彩分享。笔记侠作为合作方,经主办方审阅授权发布。


讲者 | 大高启二  今日笔记达人 | 王雅鑫

封面设计 | 子墨   责编 | 嘉琪

第  3615  篇深度好文:7628 字 | 15 分钟阅读

全网首发·完整笔记•视觉营销


本文优质度:★★★+    口感:麻辣小龙虾


笔记君邀您,阅读前先思考:


  • 消费背后的5种动机是什么?

  • 如何才能创造出极致的用户体验?


今天主要跟大家分享“新时代,从销售和空间结构两方面出发,如何运用VMD(视觉营销)和五感,把零售业做到最好”。

 

我跟其他的空间设计师有一个非常大的区别:我是销售人员出身,做了16年后开始做空间设计师,这也是我的优势所在,我知道如何站在顾客的视角去提供他们想要的东西。

 

一、“VMD+五感空间设计”

 

1.“VMD(视觉营销)+五感空间设计”是什么?


▲ 长按图片分享给需要的人

 

对我来说,“VMD+五感空间设计”不仅是打造一个炫酷漂亮的门店空间,最终目标是打造一个靠营销商品带来业绩的空间,而它真正的意义是:


要更多地站在顾客的视角,知道他们想要什么,从而打动他们的心。

 

2.用“VMD(视觉营销)+五感设计”解决各种“场”的问题

 

接下来为大家介绍基于这个理念打造的一些面向品牌的案例:

 

案例1:五感体验型手表专卖店

 

这个手表专卖店的主题是“过去与未来”,主打“体验”两个字,门店入口地方有一个互动的东西,以此引起众人兴趣。

 

这样,消费者走过路过就不会错过了。这个可以互动的东西中有传感器技术,有人来店员就会知道。利用这样的方式,起到了很好的引流效果。

 

 

当时整家门店加入了五感要素,视觉上加入了22个电视机,用来播放视频,吸引大家的注意力,还有音响,站在指定的位置会播放音频,还有内部的装璜椅子等等。他们非常重视大家的体验,包括触觉和感官。

 

说到手表大家第一感觉是高级奢侈品,但我们的定位更偏向时尚,这是一个非常大胆的调整。

 

事实证明,这个调整尝试是成功的,因为以前提到手表都是有目的购买的,加上手表是奢侈品,很多人不一定想进入门店,或者进去会感到有点紧张。


▲ 长按图片分享给需要的人

 

但通过五感,我们发现:时尚会引发人们的购买欲望,最终促成交易,提升业绩

 

并且这样一来,整个品牌价值也上升了。

 

案例2:体育运动品牌

 

品牌方希望我们帮助他提高整个时装的业绩,所以打造了一个复合型的门店,有供应咖啡的休闲区等等。

 

我们设计的每一步都是有目的的。门口有咖啡是为了引流,吸引大家进来,小卖场主要卖与运动相关的杂货,以此提高店铺人数。


一旦顾客有购买意愿,销售人员就可以搭话,最终促进品牌的宣传和业绩的提升。



二、传统的VMD

 

什么是VMD?


▲ 长按图片分享给需要的人


它是一套拥有科学体系的视觉营销,是把包括产品计划在内的商品战略,用可视化的形式展示给顾客。

 

因为五感当中视觉占的比例最高,所以一般会运用这个特质来打造门店。关于视觉感受,大家可以跟随我的提示进行回忆:


大家应该接触出过一些测试,面前展现一张静态图,每个人看到的感觉是不一样的,有的人感觉图片晃动特别厉害,说明现在身心俱疲;


有的人看到的就是一张静态图,说明这些人是没有压力的,一般孩子看到的也会是静态的图。


 

▲ 长按图片分享给需要的人


基于过往经验,我们发现:

 

不管日本还是中国都有一个有趣的现象,产品非常好,门店非常酷炫漂亮,但业绩就是上不去。


所以,VMD(视觉营销)的目的主要有两个:一个是帮助大家提供整个品牌的价值形象认知度,最终达到效率提高销售;一个是VMD作为一个体系,最终帮助企业节约成本。

 

接下来要做的就是在实际引进时有门店设计,最终达到引流和提高顾客成交率,因为顾客的客单价是通过冲动购物最终实现客单价上升的目的。

 

设计当中比较重视的有两个点:

 

第一,磁力点。

 

它始于入口处,通过连续设置将顾客视线引导进入店铺最内侧,以此提高产品的接触率度,并通过店内的回游动线(建筑和室内设计用语,指将动线串联,形成环线)提高顾客滞留时间,最终增加交易成功的可能性,提高业绩。

这是日本一家集成店杂货店的门店设计,黄色的地方就是磁力点,包括货架高度和设计,这些都是要考虑的内容。

 

 

包括利用人的一些特质,人是从上往下看东西,还有一些流水台,再往下看,就是提高顾客与商品的接触率。

 

第二,顾客的购物心理。

 

顾客的购买心理涉及到AIDMA法则,这也是在设计的整个过程当中需要不断考虑的因素。

 

A是引流,指Attention,从店外引到店内;I指Interest,是对产品产生兴趣;D指Desire,是欲望,包括想要触碰一下商品;M指Memory,是记忆,通过想象方式想下使用的场景,最终使顾客心动;A指Action,是行动,掏出钱包买商品。

 

接下来具体分享一下,从顾客视角和门店视角看这个AIDMA是怎么成立的。上面是顾客视角,下面是门店的视角。

 

首先注意A的部分,顾客被一家门店吸引,觉得品味不错,氛围不错,是我喜欢的,会提起兴趣,门店通过氛围的方式引起顾客注意。I的部分,是引起顾客的兴趣,这时要考虑怎么通过商品摆放与门店布局,引起顾客的兴趣。

 

接下来是D的部分,顾客要想要了解这个商品,了解之后有购买的冲动,门店要把产品线展示出来,让顾客看到产品的亮点在哪里,引发顾客的消费冲动。

 

往下走是M,是门店不一样的形式,M更加注重自助消费,没有服务员,另外一个C选择,是有服务员的,试过衣服之后觉得怎么样,想过之后觉得是否值得购买,门店要做的是尽量让顾客接受我们的产品,拿起来才有成交的可能。

最后是行动购买A,这时候顾客可以听取介绍,看到介绍的内容,他决定最终购买。门店应该做的是通过语言,通过销售人员或者其他的门店的信息传递给顾客,让他们知道怎么用,最终促成顾客去购买。

 

这是AIDMA法则,从顾客和门店的视角分别介绍从引起顾客注意到完成购买的整个环节,以及我们该做什么。

 

如何打造卖场?关于打造卖场,有三个要素:


第一,通过视觉吸引顾客想要进店的VP(吸引顾客第一视线的重要演示空间)

 

第二,定点进行展示的PP(售点陈列),相当于指示牌的作用,告诉顾客想要的商品在哪里;


第三,相当于商品陈列的IP(使用展台/货架/货柜等道具陈列卖场中实际销售产品的区域),就是顾客拿起产品,确认大小尺寸材质,包括价格颜色,最终决定是否购买。


 

VP、PP、IP很重要的一点是连续性,你要将其连贯起来才能把顾客吸引住。到实体门店,VP吸引大家的注意力,告诉大家感兴趣的商品在哪里,就是商品的陈列IP,然后顾客拿起来看一下是否愿意买,旁边还会生成立体图。


三、零售业的“VMD+五感” 

 

为什么要强调“VMD(视觉营销)+五感”?


▲ 长按图片分享给需要的人


因为现在的消费者出现两极,一极希望简单购物,一极希望体验更快乐的购物过程。

 

面对两极化的客群该如何应对?现在网络越来越发达便利,想要购物的消费者去网上找就可以,顾客希望到门店体验消费过程,只有实体店可以做到,可以让消费过程变成一种体验,变成一种愉悦感。

 

如何提高整个实体店的空间价值,最终提高整个品牌的价值,这是VMD的最终目的------打造一套心动的空间。

 

我们走过三个潮流:

 

最开始1.0是产品出道,只要产品够好就有人买。


随着产品越来越多,竞争越来越激烈,就变成2.0消费者主导,消费者要什么就提供什么。


▲ 长按图片分享给需要的人


现在进入3.0的过程中,叫做价值导向,只有打动人心,切实抓住顾客的痛点和需求,他们才愿意掏钱



价值导向是现在和将来一定要做的,就是增加消费者的消费价值,包括感受到产品和品牌的价值。

 

当今时代,光有原来那一套可视化体系的VMD把卖场打造得更加科学化,是不够的,必须加入五感,带给顾客体验和价值,这才是企业和零售最需要的东西。

 

在五感中,视觉占比是最大的,达83%。但要打动人心,光让顾客对你的品牌有忠诚度是远远不够的,这样在选择时,只用VMD就不够了,此时,听觉和嗅觉触觉就变得非常重要。


 

在视觉的基础上加入声光电以及香味,提高认知程度,强化品牌形象,让顾客觉得只有在这,才可以获得体验,下次还愿意来。这时再通过一些科技手段,把五感和视觉联系起来。

 

那如何刺激顾客的五感,打造整个店的氛围呢?

 

首先是味道。好的香味对于大脑和情绪,都会起到非常正面的影响力,有助于顾客身心放松,并且给顾客留下深刻印象,这是直接作用于人的情感的。

 

但有一点一定要注意,香味因人而异,有人喜欢,就有人不喜欢。所以,使用味道时要注意两点,把握合适的度:第一,浓度是否适宜;第二,布置的位置是否合适。


其次是视觉。不同的颜色给人带来的感受是不一样的,要把握颜色本身的特质,根据你要的效果进行打造。


 

在颜色心理学中,红色基本上是非常正面、非常强悍热情的颜色;绿色是比较自然比较平和、也比较让人放松的颜色;橘黄色是非常有活力的、给人以开朗感的颜色。

 

当然,每一个国家对颜色的理解会有不一样,可以根据自己国家的特质来调整。

 

然后是音乐。音乐主要作用于听觉、情绪。


背景音乐有三大功效:


第一是遮蔽效果,商场人流量很大,通过音乐可以舒缓与人说话带来的影响,也可以遮蔽或者降低工作人员作业时带来的声音。

 

第二是打造一个完全不一样的氛围,不同的音乐带来的感官不一样,你想打造什么样的氛围,都可以通过音乐来实现。

 

第三就是达到打动人心的效果,通过音乐可以消除人的不安,给人带来安全感,还可以调节甚至控制人的情绪


 

最后是灯光照明。灯光的明亮程度,或者是直接环境灯和简洁环境灯,都会对氛围的打造起到很大的影响。


不同类型的店铺对灯光的选取是不要一样的。零售型服装店,像优衣库要打造的是给人一种非常明亮非常清爽有活力的感觉;服务型宾馆和美容SPA,会把整体的灯光照明调暗,把一些间接环境灯调到一个治愈的效果。

 

还有一类会把灯光打在墙壁的画作上或者展示品上,给人一种身处美术馆和艺术馆的感觉。

回到AIDMA法则,它是跟五感完全联系在一起的,进入A可以用一些动态物体引起顾客的眼球,I通过背景音乐,使顾客产生兴趣,D通过顾客接触商品体验从而产生欲望,M通过嗅觉以及照明留下一个印象,最后A通过门店销售员促成顾客消费。


▲ 长按图片分享给需要的人

 

总结一下,该法则放到整个门店中,对应的是门店的五大魅力卖点:展示、布置、商品诉求、陈列、销售的魅力。

 

最后实际落实时能看到第一个门店的展示能力,就是给顾客带来的第一印象、卖场布置的魅力,整个布局包括POP(卖点广告)是不是合理的,商品诉求就是产品摆放方式、陈列、待客之道以及销售。

 

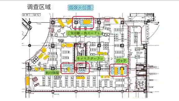
案例1:日本买手集成店LOFT

 

日本品牌买手集成店LOFT的VMD(视觉营销),跟MUJI比较像,但LOFT全部是采购的,这是LOFT的一个特点,每年顾客人数大概能达到4500万人。

 

这家集成店的合作企业有1200家,高毛利低单价,商品更换频率高达50%。

 

 

2014年度开始引进VMD(视觉营销),2017年加入了五感,对宣传促销体系进行了强化,然后2.5版本,去年开始打造自有产品,今年准备开发自己的APP。

 

具体是怎么做的呢?

 

第一,找一家标杆店铺,对它进行改造。

 

 

这是当时选的比较有代表性的,或者觉得有问题的一家标准店,都是直线动线。为了增加顾客的回游和滞留的时间,包括接触商品的时间,我们把直线的动线改成曲线的动线,虽然货架减少了,但业绩上升了。

 

在进行验证之后,我们正式引进这个这个曲线的动线,并且对货架高度也进行了调整。

 

第二,定制标准化手册。

 

这个完全基于LOFT自己的特质,包括真正的使用方法。但是光有手册不是目的所在,最终目的是希望手册可以被大家应用到实际的工作中去。

 

所以这时提出对VMD(视觉营销)进行一个全国性的、彻底的普及,每年有四次培训,因为LOFT集成店坚信打造一家好的门店就是打造更多的人才。

 

培训分为基础培训和实践两个环节,中间加入感知环节,解决原来门店没有注意到的但切切实实存在的问题,最后自己成为老师,去教导别人。


 

通过前面的初级培训,可以继续参与中级班和高级班,成为组织者,变成研究者,最后可以成为专家。

 

不同阶段的培训内容和培训步骤是不一样的,越往后要求越严格,不仅要去操控去改变,进行门店诊断、分析、调整,还要传播VMD,这是能够提升业绩的。

 

对于一些比较重要的关键性内容,比如如何打造全年的促销计划和方案,包括实际怎么改怎么操作,都以视频的方式录下来在整个门店进行传播和推广。

 

通过培训,最终发现卖场销售人员是可以做到自己打造一个卖场的。

 

当时进行了一个VMD(视觉营销)实际试验,在天花板上安装传感器,可以测到这个区域里的人数,包括顾客在这里停留多久。

 

美妆板块的数据显示,顾客人数和滞留时间都有上升趋势,于是,对卖场进行VMD调整,发现人数以及时间呈现不同程度的上涨趋势。

 

 

这是调整前后的业绩,护肤品涨到129%,箱包涨到245%,只有最后一个抱枕因为季节问题,销售额降了一半。

 

结果是什么呢?结果是VMD虽然有效,但要跟商品结合才可以发挥最好的效益。

 

案例2:热风

 

热风在全国有900多家的门店,我们的任务是对它进行门店诊断、找到问题,然后进行调整改善。

 

我们首先选择一家标杆店,对每一个区域进行诊断,看是否适合视觉营销,是否合理。在这个基础上对它进行简单的调整和改善。

 

 

这是门店开始的地方,上面是原来的,下面是调整后的,原来墙挡住了视线,顾客不愿意进店。

 

当时做了几个点,把模特从门口调整到了店内,这个做法使门口更开阔,可以吸引顾客进来。

 

对模特身上穿着的衣服进行了调整,所有的服装风格都是相关联的。突出了主打产品,热风的主打是鞋,不是服装,所以把鞋品放在最显眼的地方,顾客伸手就可以摸到。



关于商务板鞋的调整,首先是进行纵向分割模块化,墙上有一根一根的线,作为分割点,分割后,归类到每一个地方都进行商品分类。

 

除了鞋品之外,把包也放进去,产生关联性,提高购买的可能性,以提高客单。所以总结起来有三大观点:第一纵向模块,第二是PP(售点陈列)点,就是包和鞋的搭配陈列,然后是关联销售。

 

接着是收银台前,有很多的货架集中在收银台前,这就导致两个问题,第一付钱的人队很拥挤,第二没有办法在这里认真挑选商品。

 

所以,又对货架直接进行了调整,从原来都是平放、竖放到对动线进行调整后有通道可以行走,对商品也进行了调整,把那些比较容易变成追加购买、价格不高且顺手可以带走的产品挪到这边。

 

接下来是应季产品,也是纵向分割模块化,还打造了磁力点,应季产品只有这一季可以买,是主推的,作为一个卖点放在这里吸引眼球。然后打造商品关联性,比如帽子和眼镜放在一起,这是提高客单价的小技巧。

 

另外,对服装板块也进行了调整,对商品的风格重新归类,比如按照上班穿还是下班穿,是休闲风还是优雅时尚风进行分类。

 

最后是儿童区的货架调整,原来是前高后低,会挡住视线,所以对动线进行调整,确保顾客可以走进走出。

 

案例3:米兰五感展厅

 

米兰是一家只做门窗的企业,主打是窗,这运用VMD和五感是非常有难度的。

 

我们对展厅进行了整体的布局,包括规划和整个空间设计。


进门的地方,主打过去现在未来,使用一些顶尖的高科技技术。



在接待前台后面的墙上做了影像。一般都是透过窗看外面的自然和光纤,它的品牌颜色是绿色,在开花的基础上让外面的光慢慢照进房间里。

 

企业希望引领整个门窗企业,希望在现在未来有新的尝试,所以把品牌的LOGO打出来,并且通过入口的影像带给大家完全不一样的新品牌形象。

 

 

关于时尚区域,正式进入展厅,“米兰欢迎你”的字样直接投影在大门的透明玻璃上,告诉你打开玻璃进入米兰的世界,把过去和未来连接在一起。

 

这些都是先有一个理念,有一个故事,然后根据故事轴线设计的,再往下走是体验区,让顾客体验门窗功能,字是投影仪直接打上去的,有音响效果,比较好玩,这是一个耳机,会告诉你这个商品有什么规格,有什么特点,进行一个商品说明。

 

后面还通过音乐和音效给大家带来五感体验,以及影响,更加直观地告诉顾客商品功能的强大。

 

接下来是高科体验技区,让顾客开关门窗,其中有个小机关,开关次数越多,打在地上的花就会绽放,等于是把顾客体验和高科技结合起来,实现与顾客之间的互动。

 

然后是洽谈区和企业历史区,打造出美术馆的感觉,音乐比较舒缓,通过加入音乐让顾客慢慢了解企业的历史,音乐都是原创的,其中加入哒哒的声音,让顾客有历史感。音乐分早中晚,时间不一样音乐不一样,每分钟的音乐拍数会根据时间自动调整。

 

 

因为是门窗,相对来说比较大件,给人有压迫感,所以用舒缓的音乐来中和它。

 

以往的VMD是视觉营销,面向新时代,未来可能是VVMD,比如网红打卡点,让顾客愿意做宣传,形成口口相传的效应,还有市场营销,通过高科技传感器了解顾客信息,搜集更多的数据利用到未来当中等等。


*文章为作者独立观点,不代表笔记侠立场。


主办方简介——


交大海外中国商业发展研究所,专业研究中国商业地产及零售业长达数十年。旗下两大品牌课程开学在即:


【中国商业地产总裁班第17期】5月18—19日;


【国际商业零售总裁班第22期】5月25-26日。


笔记侠好文推荐:


9个灵感来源,让无印良品做出一个个爆品

梁宁最新演讲:人生的3个底层能力

哈佛教授:成功者未必幸福,幸福者多数成功



觉得好看,就点在看

登录查看更多
0

相关内容

张静,中国人民大学副教授。主要研究方向为机器学习、深度学习、图神经网络在知识图谱对齐、实体链接、实体补全与问答等。主持多项国家自然科学基金项目等课题。AI Open期刊Associate Editor。曾任SIGKDD、IJCAI等领域内国际顶级学术会议高级程序委员会委员。KDD十年最佳论文获得者。
商业数据分析,39页ppt
专知会员服务
165+阅读 · 2020年6月2日
少标签数据学习,54页ppt
专知会员服务
205+阅读 · 2020年5月22日
【CVPR2020-百度】用于视觉识别的门控信道变换
专知会员服务
13+阅读 · 2020年3月30日
Python数据分析:过去、现在和未来,52页ppt
专知会员服务
103+阅读 · 2020年3月9日
姿势服装随心换-CVPR2019
专知会员服务
36+阅读 · 2020年1月26日
报告 | 2020中国5G经济报告,100页pdf
专知会员服务
99+阅读 · 2019年12月29日
【阿里技术论文】AliMe KBQA:阿里小蜜中的结构化知识问答
专知会员服务
83+阅读 · 2019年12月14日
清华大学两名博士生被开除:你不吃学习的苦,就要吃生活的苦
机器学习算法与Python学习
25+阅读 · 2019年9月16日
李善友:战略听着空?但有人用它“绝处逢生”
互联网er的早读课
10+阅读 · 2019年1月15日
阿里给程序员准备的开源年货,你收到了吗?
前端大全
3+阅读 · 2018年1月23日
“我今年36岁了,除了收费啥也不会!”
创业邦杂志
4+阅读 · 2018年1月14日
徐小平讲了个投资奇迹,3年不到75万变3亿
钛媒体
5+阅读 · 2017年12月15日
猝不及防!刚刚,马云重大宣布,沸腾了全中国!
今日互联网头条
3+阅读 · 2017年11月23日
【新零售】当下趋势:传统零售将变革为新零售
产业智能官
3+阅读 · 2017年11月12日
Efficiently Embedding Dynamic Knowledge Graphs
Arxiv
14+阅读 · 2019年10月15日
VIP会员
最新内容
《第四代军事特种作战部队选拔与评估》
专知会员服务
1+阅读 · 今天6:23
不对称优势上升:自主系统如何强化海上拒止
专知会员服务
1+阅读 · 今天5:51
《人工智能赋能电磁战》(报告)
专知会员服务
2+阅读 · 4月17日
【CMU博士论文】迈向可扩展的开放世界三维感知
相关VIP内容
商业数据分析,39页ppt
专知会员服务
165+阅读 · 2020年6月2日
少标签数据学习,54页ppt
专知会员服务
205+阅读 · 2020年5月22日
【CVPR2020-百度】用于视觉识别的门控信道变换
专知会员服务
13+阅读 · 2020年3月30日
Python数据分析:过去、现在和未来,52页ppt
专知会员服务
103+阅读 · 2020年3月9日
姿势服装随心换-CVPR2019
专知会员服务
36+阅读 · 2020年1月26日
报告 | 2020中国5G经济报告,100页pdf
专知会员服务
99+阅读 · 2019年12月29日
【阿里技术论文】AliMe KBQA:阿里小蜜中的结构化知识问答
专知会员服务
83+阅读 · 2019年12月14日
相关资讯
清华大学两名博士生被开除:你不吃学习的苦,就要吃生活的苦
机器学习算法与Python学习
25+阅读 · 2019年9月16日
李善友:战略听着空?但有人用它“绝处逢生”
互联网er的早读课
10+阅读 · 2019年1月15日
阿里给程序员准备的开源年货,你收到了吗?
前端大全
3+阅读 · 2018年1月23日
“我今年36岁了,除了收费啥也不会!”
创业邦杂志
4+阅读 · 2018年1月14日
徐小平讲了个投资奇迹,3年不到75万变3亿
钛媒体
5+阅读 · 2017年12月15日
猝不及防!刚刚,马云重大宣布,沸腾了全中国!
今日互联网头条
3+阅读 · 2017年11月23日
【新零售】当下趋势:传统零售将变革为新零售
产业智能官
3+阅读 · 2017年11月12日
Top
微信扫码咨询专知VIP会员